Nouveauté

Appartement T3 Paris 10 – Louis Blanc / Faubourg St-Martin

Paris 10 (75010)

2 ch.

1 salle(s) d’eau

50.13

Points forts

  • 10e arrondissement : 94 480 habitants, 36 % de propriétaires
  • 99 % d’appartements / 1 % de maisons
  • 3 540 commerces de proximité
  • Très bien desservi (74 % des ménages sans voiture), nombreux espaces verts

Caractéristiques

Pièces
3
Chambres
2
Salles d’eau / bains
1
Surface habitable
50.13 m²
Étage
1
Ascenseur
Non
Cuisine
equipee
Cave
Oui
Réf. web
52306530
Réf. agence
9992

Performance énergétique

DPE E

Copropriété

Soumis à la copropriété
Oui
Charges mensuelles
145,00 €

Informations clés de la commune

Revenu mensuel
3 190,00 €
Écoles & crèches
88
Taxe d’habitation
13 %
Commerces
564
Transport
36.1 stations/km²
Densité
31814 hab/km²
Ensoleillement
1681 h/an
Terrains & salles de sport
29

Description

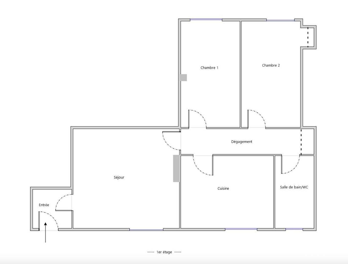
Rue du Faubourg Saint-Martin – Louis Blanc. Appartement traversant de 3 pièces (50,13 m²) au 1er étage sans ascenseur d’un immeuble ancien entretenu.

Plan optimisé : entrée, séjour sur cour calme et arborée, cuisine aménagée et équipée, 2 chambres, salle de bain, WC séparé. Charme de l’ancien.

Cave en sous-sol. Emplacement idéal aux pieds des commerces et proche du Canal.

Copropriété : charges ~145 €/mois.

DPE E – dépenses estimées 1 190 € à 1 660 € / an (indexées 2021–2023, abonnement compris).

Mentions : Réf. web 52306530 — Réf. agence 9992. Honoraires à la charge du vendeur.

Visite virtuelle

Localisation

Paris 10 (75010)
Itinéraire

470 000,00 €

À partir de 2 376 €/mois — simulation non contractuelle

Contacter l’agence

Avez-vous un bien à vendre ?

À propos du bien : Appartement T3 Paris 10 – Louis Blanc / Faubourg St-Martin — /t3-paris10-louis-blanc-fsm

Habitat Rapide – Agence immobilière de confiance